Úvod / Ponuka bytov / Byt - F55

2 izbový byt - F55

Byt v prevedení štandard
Možnosť dokúpiť si:
pivničnú kobku garážové/vonkajšie parkovacie státie
Celková plocha
54.85 m²
interiér
49.99 m²
Exteriér
4.86 m²
Počet izieb
2 izby
Číslo bytu
F55
Podlažie
5
Stav
Voľný
Schéma
objektov
Poloha bytu
na podlaží
Svet.
strana:
Sever
Na stiahnutie
predajná cena
184 900 EUR
Mám záujem
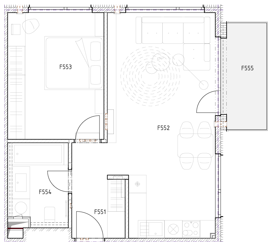
F551 - Zádverie
5.05 m²
F552 - Obýv. izba s kuch. kútom
26.11 m²
F553 - Izba
13.86 m²
F554 - Kúpelňa
4.97 m²
F555 - Balkón
4.86 m²

Hypokalkulačka

Hodnota hypotéky
147 920 €
(80% z ceny)
Doba splácania
30 rokov
Mesačná splátka
639 €
(s úrokom 3.19%)

Potrebujete pomôcť
s financovaním bytu?

Preskúmajte financovanie v 3 krokov alebo možnosť predbežného schválenia hypotekárneho úveru s čerpaním až po kolaudácii.

Viac informácií

Vizualizácia projektu Byty Kamenáč

Objavte okolie
bytov Kamenáč

Jedna z najvyhľadávanejších lokalít v Trnave prináša prostredie ideálne pre mladých, príjemné pre rodiny a dostatočne pokojné pre seniorov. Objavte, čo všetko môžete mať na dosah.

Viac informácií
map

Kontaktujte nás

Sú dostupné parkovacie miesta? Prislúcha k bytu kobka? Napíšte nám, odpovieme na všetko, čo vás v projekte Byty Kamenáč zaujíma.

    Vaše osobné údaje spracúvame za účelom vybavenia Vašej požiadavky.
    Viac informácií nájdete v zásadách ochrany osobných údajov.
    Byt F55 - Bytový dom F
    bytykamenac.sk
    Schéma
    objektov
    Poloha bytu
    na podlaží
    Svetová strana:
    Sever
    Označenie bytu
    F55
    Interiér
    49,99 m²
    Exteriér
    4,86 m²
    Podlažie
    5
    Bytový dom F
    Č.miestností - Názov miestností Plocha (m²)
    Interiér 49,99 m²
    F551 - Zádverie 5,05 m²
    F552 - Obýv. izba s kuch. kútom 26,11 m²
    F553 - Izba 13,86 m²
    F554 - Kúpelňa 4,97 m²
    Exteriér 4,86 m²
    F555 - Balkón 4,86 m²